公司簡介
/ About
商品資訊
/ Product
各式平台格柵板圖Grating of type
樓梯板之種類 Type of Stair Tread
優點及種類Advantages & Types of Grating
固定片使用方式Clip Fixing
介紹及用途Purposes of Grating
重量規格表Standard Weight Grating
主桿支數與格柵板寬度關係NO. of Bearing Bar & Width of Grating
標準格子板尺寸強度之規範Standard Specification of the Size and Strength of Grating
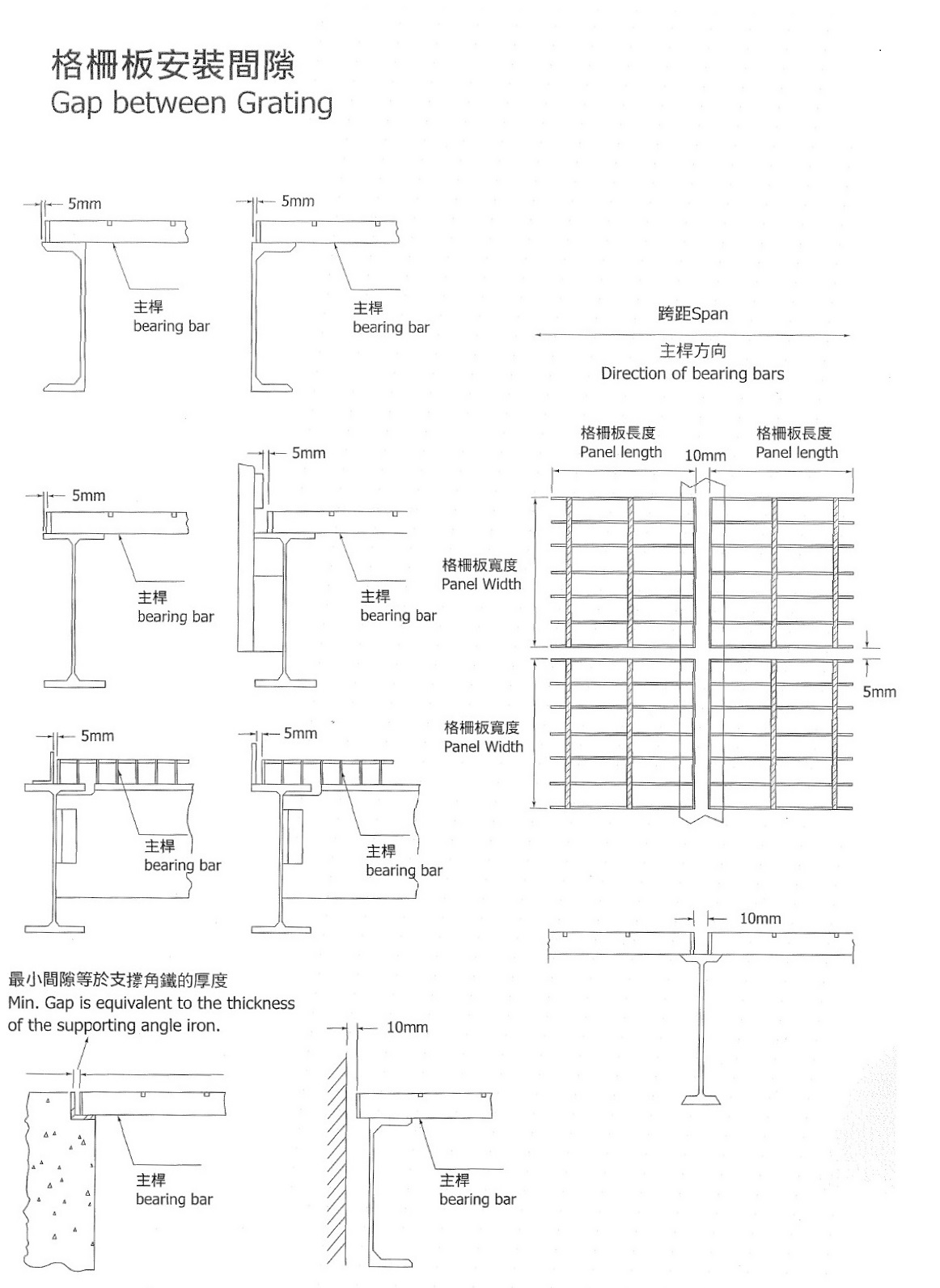
格柵板安裝間隙Gap between Grating
製造公差Manufacturing Tolerances
水溝蓋板Manhole Cover
聯絡我們
/ Contact
商品資訊
product
首頁
/
格柵板安裝間隙Gap between Grating
更多分類
格柵板安裝間隙Gap between Grating
Gap between Grating
9000